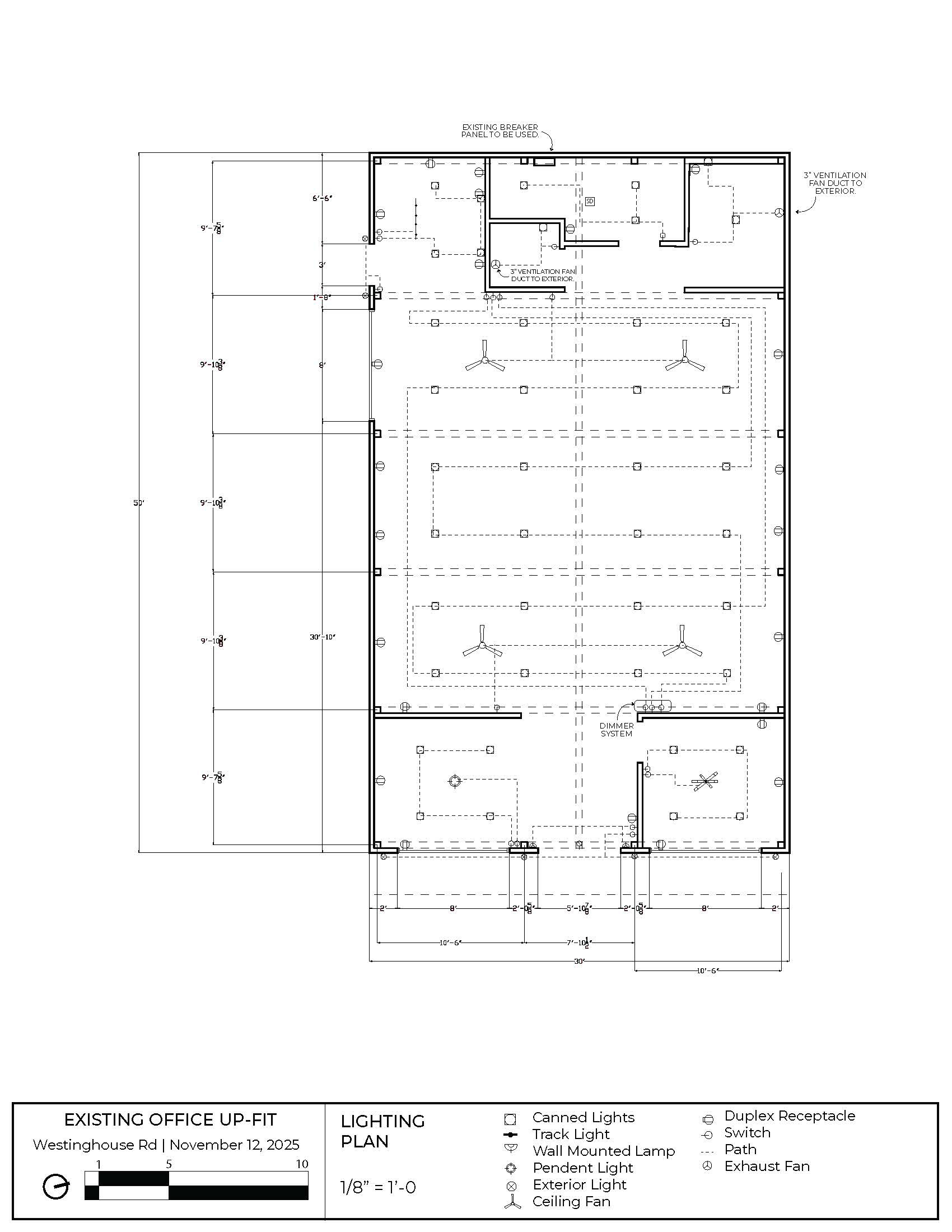
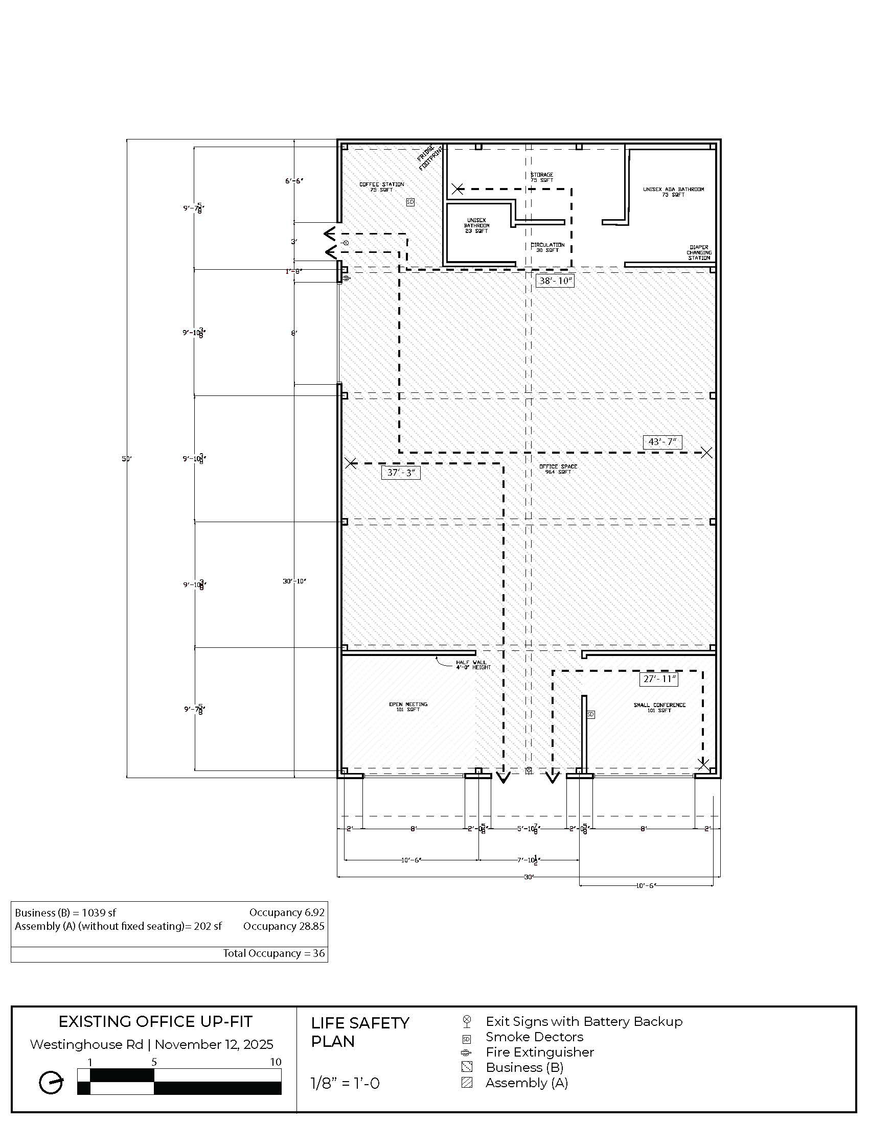
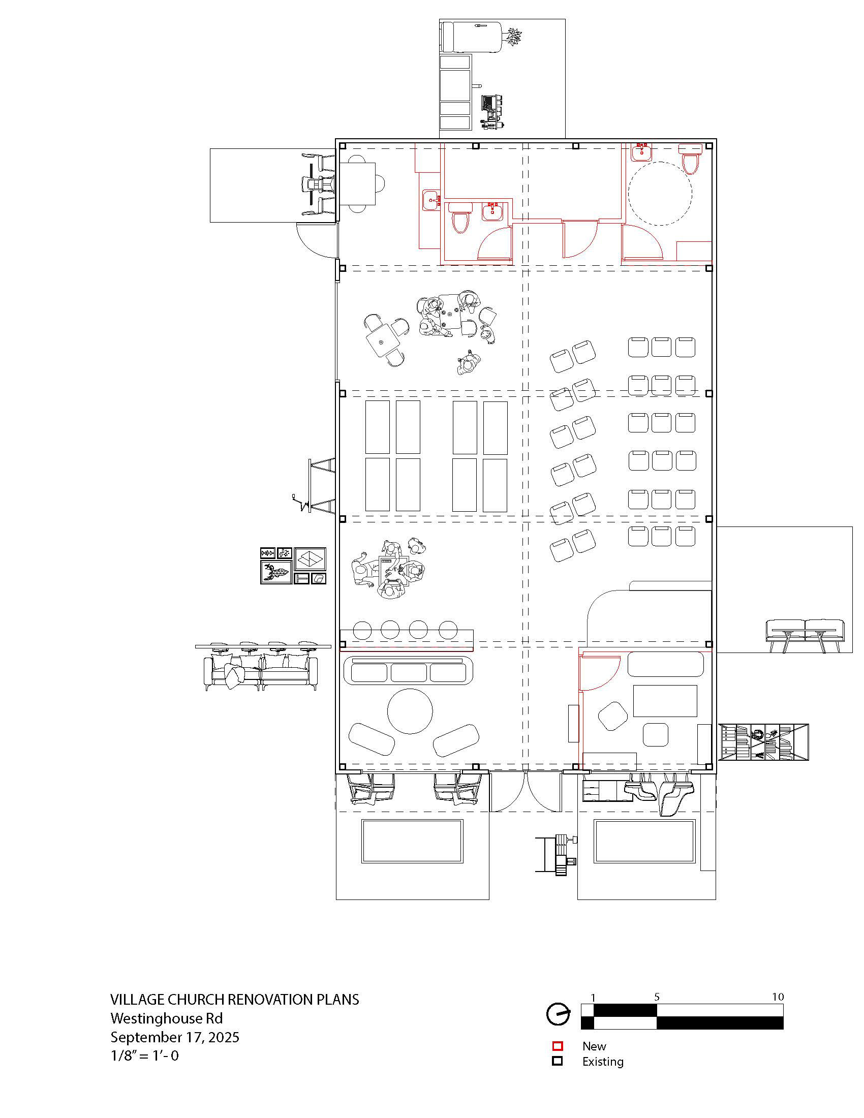
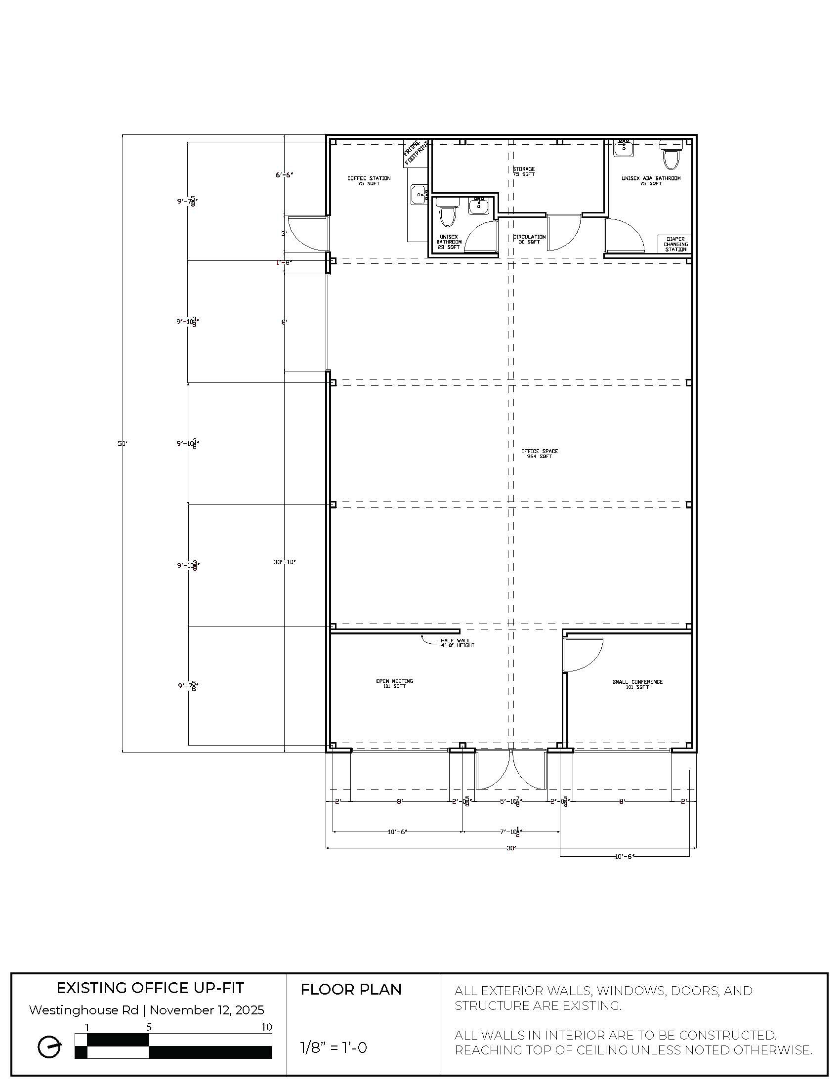
Renovation of a Pawn Shop into a new office space for Village Church in Pendleton. Upfitting the existing space to be comfortable for daily office use and small group meetings in the evening and weekends. Working closely with an interior designer, construction partners, and pastor meeting bi-weekly for project updates. Project under construction to be completed in May. 
Main Entry
Main Entry
Facing Westinghouse Rd
Facing Westinghouse Rd
Interior Before
Interior Before
Interior Before
Interior Before
In Progress
In Progress
In Progress
In Progress

You may also like

Back to Top